ヨコハマ・りぶあす

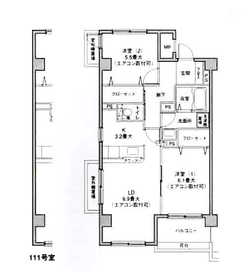
ディライト・ファイブ B タイプ

ディライト・ファイブ B タイプ
内覧予約・ご入居の
お問い合せは・・・
045-451-7766
【受付時間】10:00〜12:00、13:00~17:00
(定休日/火曜日・水曜日)